NEWS

新闻动态

门你可以不懂,但如何正确测量门洞你必须要懂
发布日期:2020-10-30 点击量: 2068

 

微信图片_20201030145636.gif

 

 

导语

你与好的布局可能就是差了一道门的步骤!门,登堂入室的第一要素,大多数人装修时却常常忽视它的存在,家里仅仅改了一扇门,就能影响整体的幸福感与居住体验,今天福熙防盗门和大家分享下如何测量:

 

微信图片_20201030145546.gif


一、了解防盗门

 

福熙防盗门15年专注中高端双色防盗门和防盗防爆锁的高新技术型企业,配有防盗锁,在一定时间内可以抵抗一定条件下非正常开启,具有一定安全防护性能并符合相应防盗安全级别的门。

微信图片_20201030145552.jpg

俗话说,内行看门道,外行看热闹。首先一樘防盗门的设计、福熙双色防盗门,正面更漂亮、反面好搭配,质感的好坏最先表现在外观上,外观细节精美、触感舒服的门产品一般不会差;所以说这时候你要是有一手好的量门技巧与方法,今天和福熙防盗门一起来学习学习吧。

 

微信图片_20201030090122.jpg

 

量前注意事项

 

安装门之前的门洞测量工作非常重要!第一手了解客户的门洞现场,判断定门尺寸,为客户推荐可定制的款式,体现专业度和服务高效化尤为重要。

微信图片_20201030145558.jpg


鲁班尺▲                                        水平仪▲

 

1
第一步:准备好量门前的工具:鲁班尺、水平仪、纸、 笔等必须要的工具,方便现场测量和记录。

2
第二步:对于现场情况的了解:
       ①了解现场水电改造以及墙体改造完工等情况。
       ②水平线具备,铺地板的房间需要做好地面找平。
       ③确定平墙是否要增加墙垛,以及现场限制。

3
第三步:开向对现场的尺寸的测量以及记录。

 

 

量门洞方法

 

1、规则门洞

 

微信图片_20201030145611.jpg

微信图片_20201030145614.jpg

 

1.测门洞高度:依次测高度(由地面到门洞顶端)左、中、右 3个点,内外洞口都要测量,取最小值。
2.测门洞宽度:依次测宽度上、中、下 3个点,两侧都需测量,取最小值。
3.测门洞厚度:分别测量左右墙面及顶墙面的厚度,取最大值
最后将测量结果记在本子上面。

 

注意:在测量过程中要注意地面处理情况,要预留出地面装修材料的厚度以备所需。

 

2
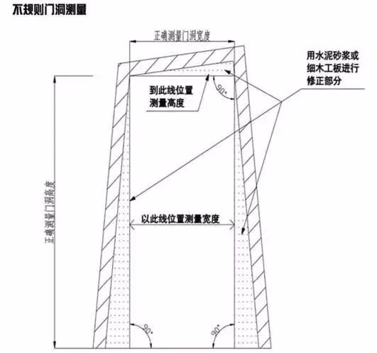
不规则门洞

 

 

微信图片_20201030145619.jpg

 

微信图片_20201030145623.jpg

 

1.门扇的测量:门扇=门框内空—预留缝隙 
2.门扇的宽度:水平测量门框内空距离,选取五个以上的测量点进行测量,其中最小值为(减预留缝隙)为门扇宽度
3. 门扇的高度:垂直测量门框内空距离,选取三个以上的测量点进行测量,其中最小值(减预留缝隙)为门扇高度

:在测量过程中要注意地面处理情况,要预留出合适的尺寸以备所需。门扇高度、门洞高度差额为5-10mm,门扇厚度标准为38mm和45mm,要和门框互相配合。

 

 

微信图片_20201030145629.jpg

 

部分图片来源:互联网,如有侵权请联系英汇网络删除!